En cours de chargement...
Maison hors d'eau hors d'air Mont De Marsan 128 m2 Vente
Réf. 2902
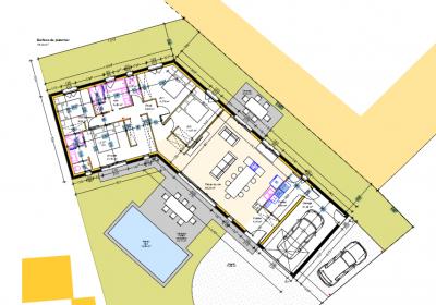
Maison hors d'eau hors d'air, dans une impasse au calme à seulement 10 minutes à pied du centre ville de Mont de Marsan. 128 m² habitables + 21 m² de garage initialement prévu pour accueillir 4 chambres dont une suite parentale avec dressing, salle d'eau et wc, une salle de bains supplémentaire, un wc indépendant, un salon avec cuisine ouverte de 48m², une entrée avec placard et un cellier. Des devis sont disponibles pour terminer les travaux intérieur et extérieur.
Bien non soumis au DPE.
Réf 2902
Prix 178 000 € honoraires charge vendeur
Caractéristiques
- Maison
- secteur MONT DE MARSAN 40000, France
- Superficie 128 m²
- 5 pièce(s), 4 chambre(s)
- Terrain de 488 m²
- Etat général : Bon état
- Chauffage : Electrique, Individuel
En cours de chargement...